INTERIÉR / REKONŠTRUKCIA
HM PRAHA - 2015
INTERIÉR / REKONŠTRUKCIA
HM PRAHA - 2015
_ interiér - interiér / rekonštrukcia rodinného domu
_ člen tímu Architekti Libor Přeček
_ spolupráca: štúdia, pprs, vizualizácie
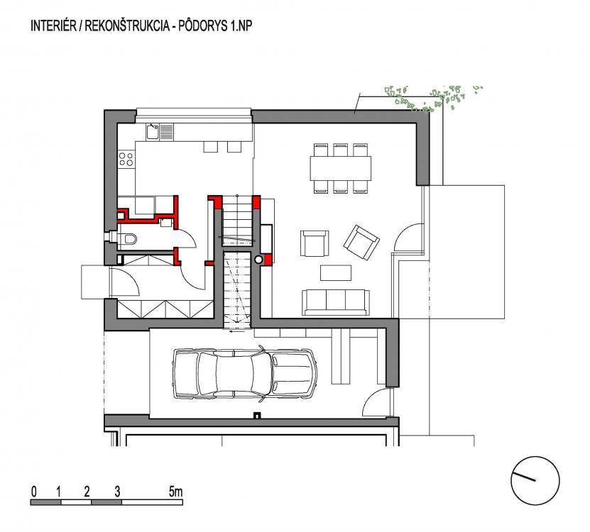
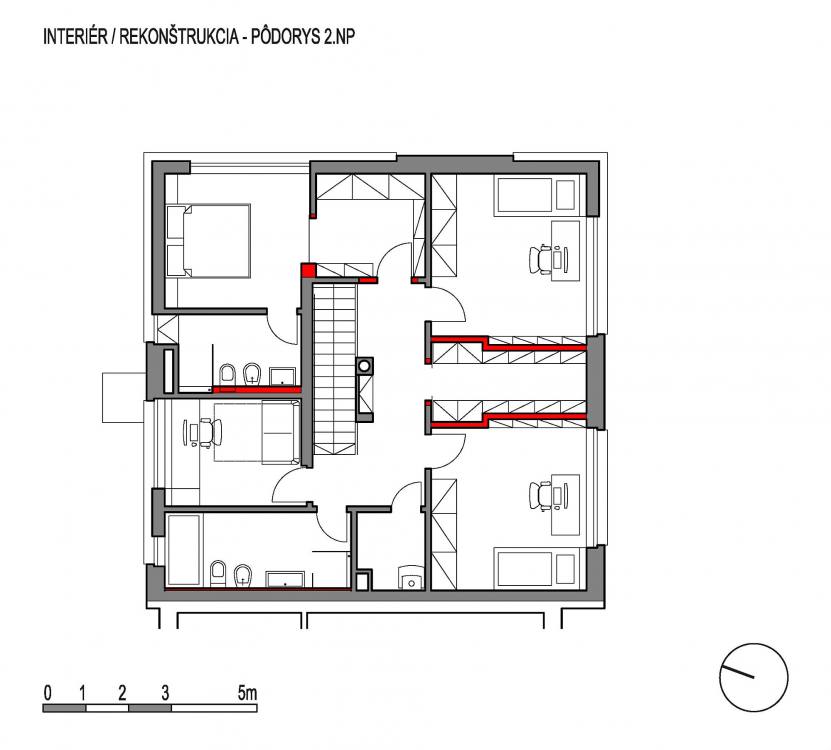
V návrhu interiéru a v rekonštrukcii rodinného domu sa jednalo o drobné posuny dverí, vybúranie vstupnej časti domu, kde sa zmenšila toaleta, doplnila špajza a zväčšila kuchyňa. V prízemí bolo navrhnuté asymetrické usporiadanie krbu, ktoré opticky zväčšilo priestor obývacej miestnosti s jedálňou. Na poschodí bola vybúraná priečka medzi detskými izbami a vložená miestnosť šatne kombinovanej so skladom. Zazubenie priečok umožnilo vytvorenie vstavaných knižníc v detských izbách. Svietidlá boli navrhnuté vo väčšine prípadov prisadené, vzhľadom k železobetónovým stropným konštrukciám domu.








