AJURVÉDA CENTRUM
VELKÉ PŘÍLEPY - 2015
AJURVÉDA CENTRUM
VELKÉ PŘÍLEPY - 2015
_ občianske stavby - Ajurvéda centrum
_ člen tímu Architekti Libor Přeček
_ spolupráca Ing. arch. Martin Kollár: štúdia, ppsp, pprs, vizualizácie
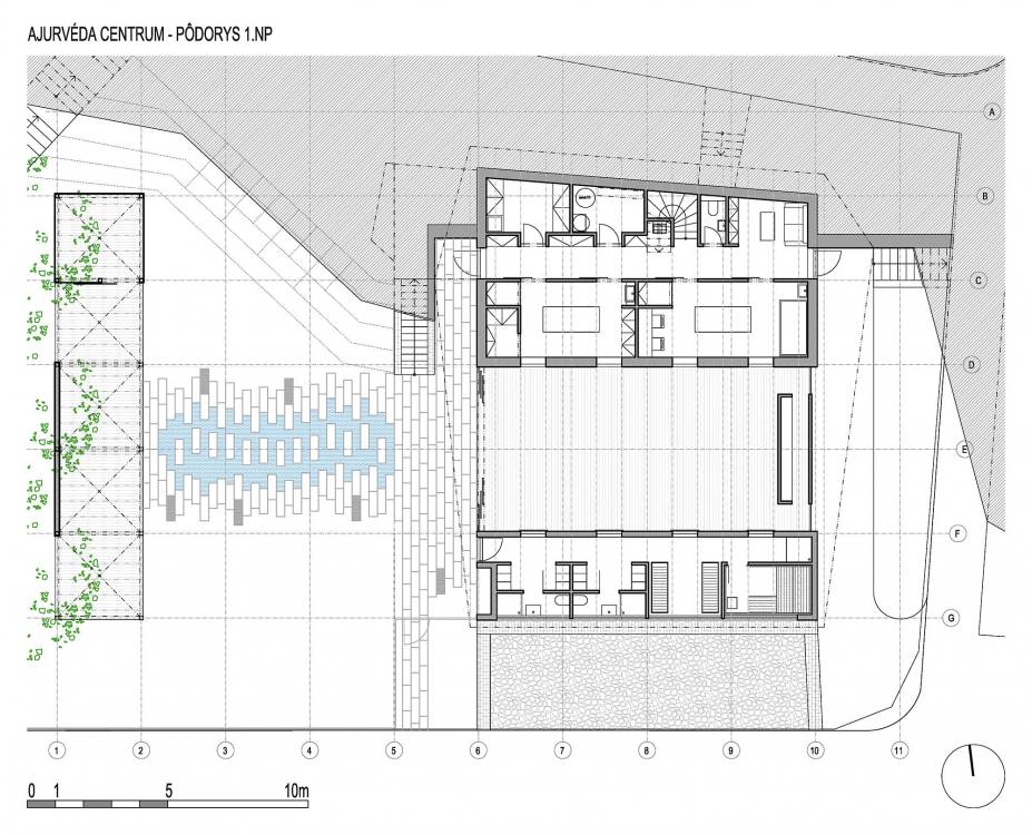
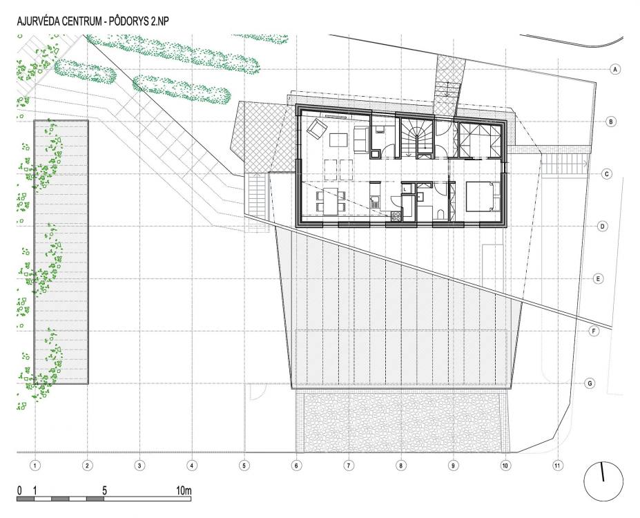
Objekt Ajurvéda centra je lichobežníkovitého tvaru s výškou dvoch nadzemných podlaží. Hmota je zapustená do južného svahu a zastrešená pultovou strechou. Dispozične je polyfunkčný objekt zónovaný tak, že v 1. nadzemnom podlaží sa nachádza komerčná funkcia a v 2. nadzemnom podlaží je umiestnený služobný byt správcu centra.








