BYTOVÝ DOM
HM PRAHA - 2019
BYTOVÝ DOM
HM PRAHA - 2019
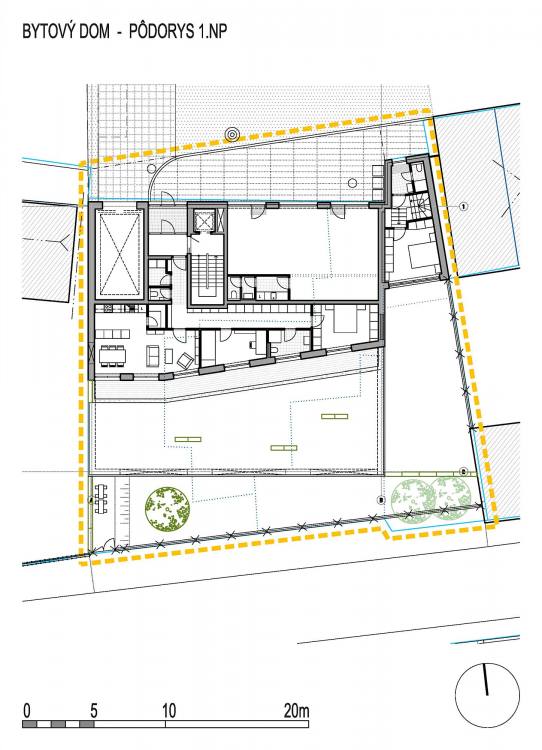
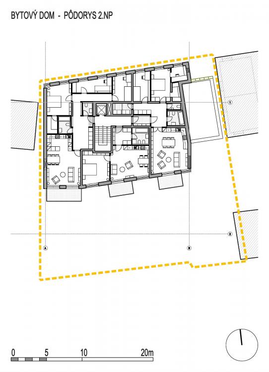
_ bývanie - bytový dom
_ člen tímu Architekti Libor Přeček
_ spolupráca Ing. arch. Martin Kollár: štúdia, dpur, vizualizácie
Novostavba bytového domu je uvažovaná ako polyfunkčný objekt, ktorého parter je využívaný pre komerčné účely. V nadzemných podlažiach sú umiestené bytové jednotky. Parkovanie je riešené v podzemných garážach umiestených v 1. podzemným podlaží objektu.








