TELOCVIČŇA
VELKÉ PŘÍLEPY - 2019
TELOCVIČŇA
VELKÉ PŘÍLEPY - 2019
_ občianske stavby - telocvičňa
_ člen tímu Architekti Libor Přeček
_ spolupráca Ing. arch. Martin Kollár: štúdia, ppsp, pprs, vizualizácie
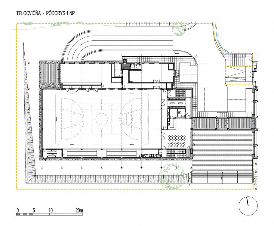
Novostavba telocvične slúži ako občianska stavba, resp. je primárne určená pre potreby výučby žiakov základných škôl obce v hodinách telesnej výchovy. V 1.PP objektu je umiestené podzemné parkovanie, vertikálne komunikácie do nadzemnej časti stavby a dve šatne so zázemím. V 1.NP objektu je umiestená veľká a malá telocvičňa, vstupná časť – foyer s recepciou a v priľahlej hmote je umiestnená prevádzka malej telocvične. V 2.NP objektu sú umiestené dve šatne so zázemím a galéria pre stojacích divákov.






