Mestský rodinný dom
Banská Bystrica
Dátum: 2017 -
Stavba je v procese realizácie
Banská Bystrica
Dátum: 2017 -
Stavba je v procese realizácie
Autor: Michal Jaško
Statika: Ivan Vanko
Vodoinštalácie/vykurovanie: Elíška Kolárová
Elektroiinštalácie: István Sztankovics
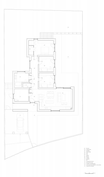
Rodinný dom je situovaný na svahovitom pozemku v užšom centre mesta Banská Bystrica.
So stavebníkom sme chceli vytvoriť klasický mestský dom pre štvorčlennú rodinu, ktorý bude jednoduchý a materiálovo odkazujúci na klasické stavebné materiály.
Exteriér - biele omietky, fasádna biela tehla, monolitické stupne z bieleho betónu, čadičové kocky na spevnených plochách dvora, veľkoformátové betónové dlažby na terase, zámočnícke prvky čiernej farby.
Interiér - drevená masívna podlaha, hladké biele omietky, nábytkové prvky s odkazom na klasickú remeselnosť a farebnosť dosiahnutá pomocou akcentov v podobe dekoračných prvkov.
Dom je navrhnutý tak, aby v ňom neexistovala tmavá chodba, a aby bolo možne vizuálne jednoducho oddeliť dennú časť od nočnej.
Osadením domu na pozemku sme vytvorili dve úrovne záhrady. Jedna záhrada predstavuje vyvýšenú trávnatú terasu napojenú priamo na obytnú halu/izby a malú predzáhradku viditeľnú z ulice.
Druhá záhrada predstavuje pôvodný terén, kde sa plánuje výsadba menších listnatých stromov. Táto záhrada je prepojená so zvyškom pozemku pomocou dvoch schodísk.





