Drevený/slamený rodiný dom pre jedného užívateľa
Ľuboreč
Dátum: 2015 - Stavba je v procese realizácie
Ľuboreč
Dátum: 2015 - Stavba je v procese realizácie
Autor: Michal Jaško
Statika: Ivan Vanko
Vodoinštalácie/vykurovanie: Elíška Kolárová
Elektroiinštalácie: István Sztankovics
Realizácia stavby:
- murárske práce: Marek Kováč,
- tesárske práce: Krovstav s.r.o.
- slamená stena a hlinené omietky: Marek
- stolárske práce: svojpomocne v réžii stavebníka
Rodinný dom je situovaný na svahovitom pozemku bývalého ovocného sadu v okrajovej časti obce Ľuboreč.
Inšpiračný zdroj pre návrh rodinného domu pre jedného užívateľa vychádzal z pocitu klasických baníckych domov s ich sebe vlastnou vizuálnou hrubosťou.
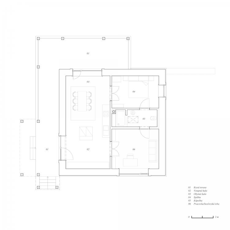
Dom je rozdelený na dve priestorové časti osobitne podľa vzahu k pozemku.
Prvá časť domu je čiastočne zapustená do svahu a slúži pre hrubé práce spojené so životom na vidieku. Vyústenie je smerované na terasovitý terén, ktorý vznikol dosypaním zeminy z výkopových prác.
Druhá časť domu je prístupná z pozemku cez veľkú terasu a majiteľovi poskytuje plnohodnotný štandard bývania trojizbového bytu.
Miestnosti sú orientované vždy jedným oknom voči fasáde domu a pri plnom otvorení prechodnej kúpelne je možné prechádza sa v dome ako v jednom otvorenom priestore.
Celý dom je priestorovo/materiálovo/detailom redukovaný na tie najzákladnejšie potreby, ktoré súviseli s požiadavkou stavebníka na program domu a technológiu použitých materiálov/rozpočet stavby.











