Prístavba víkendového domu k hospodárskemu statku
Očová - Obchoditá
Dátum: 2016 -
Stavba je v procese realizácie
Očová - Obchoditá
Dátum: 2016 -
Stavba je v procese realizácie
Autor: Michal Jaško
Statika: Ivan Vanko
Vodoinštalácie/vykurovanie: Elíška Kolárová
Elektroiinštalácie: István Sztankovics
Desať minút autom z obce Očová je na samote umiestnený kamenný statok. Stavebník potreboval jednu časť pôvodného statku, ktorá nevyhovovala užívaniu, nahradiť novostavbou. Tá bude potom slúžiť ako víkendový dom pre rodinné stretnutia.
Prízemie domu je výlučne denná časť, ktorá sa jednotlivými vizuálnymi väzbami viaže na dvor, okolitú krajinu a vytvára kontinuálny prechod medzi novostavbou a pajtou. Priestor je navrhnutý tak, aby užívateľ v interiéri vnímal dominantne iba dve hlavné miestnosti - kuchyňu a obytnú halu.
Technická miestnosť a WC sú umiestnené za priestorom schodiska a prístupné sú z medzipodesty.
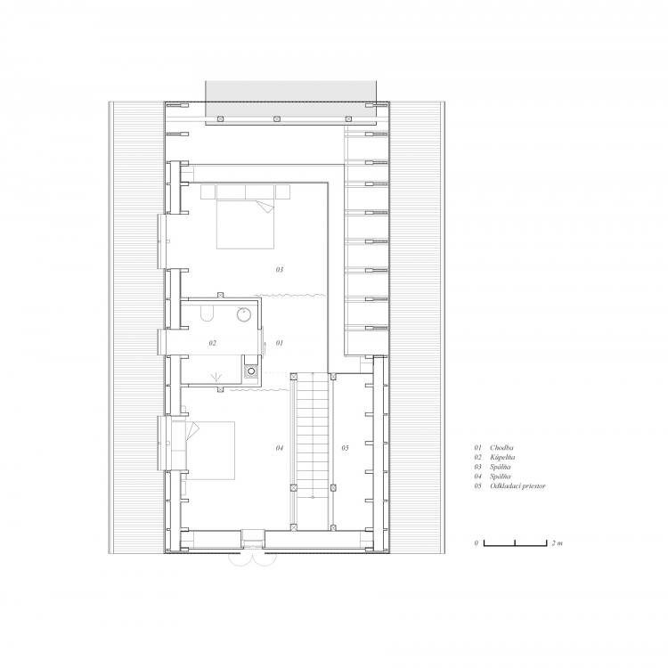
Obytné podkrovie slúži ako nočná časť o dvoch izbách, kúpelni a jednom veľkom úložnom priestore. Izby sú oddelené iba vizuálne pomocou ťažkých závesov.
Prístavba a kamenný statok sa budú počas nasledujúcich rokov vizuálne zjednocovať.










