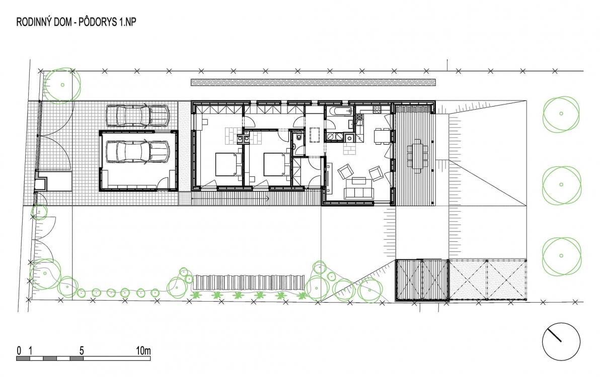
RODINNÝ DOM
ĽUBOCHŇA - 2015
RODINNÝ DOM
ĽUBOCHŇA - 2015
_ bývanie - rodinný dom
_ člen tímu mako.sk
_ spolupráca: štúdia, ppsp, pprs, vizualizácie
Zadávateľ požadoval vytvorenie víkendového rodinného domu. Objekt spĺňa pasívne štandardy. Jednotlivé funkcie domu sú radené postupne za sebou, pri rozdelení dennej a nočnej časti objektu hygienickým uzlom.




