Prístavba rodinného domu
Točnica
Dátum: 2014
Točnica
Dátum: 2014
Autor: Michal Jaško
Statika: Ivan Vanko
Vodoinštalácie/vykurovanie: Elíška Kolárová
Elektroiinštalácie: István Sztankovics
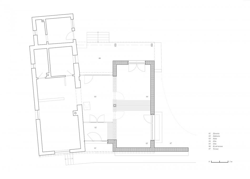
Rodinný dom je situovaný v centre obce Točnica. Mladá rodina potrebovala rozšíriť pôvodný jednoizbový vidiecky dom o dve izby. Pôvodný dom bol oproti terénu vyvýšený cca o 1m a bol prístupný pomocou schodiska.
Princíp domu spočíva v pristavaní jednoduchého obdĺžnikového objektu, ktorý je osadený voči pôvodnému domu s vychýlením o 4.5° a je obytnou časťou na úrovni pôvodného domu.
- Pristavaná časť sa otvára do troch strán.
- Nástup do domu pomocou nového schodiska.
- Výstup z izby na nekrytú terasu ako súčasť záhrady, ktorá sa úrovňovo dotvorila, aby bola v úrovni izby.
- Výstup na krytú terasu z izby a vstupnej haly.
Poznámky:
Vychýlenie vo vstupnej hale rozširuje priestor v smere východu na krytú terasu.
Strecha bola navrhnutá ako pultová v smere do ulice, aby sa docielila menšia vizuálna veľkosť domu z pohľadu od ulice, a aby bola strecha terasy nadštandardne vysoká.
Táto výška zabezpečuje dostatok svetla vnikajúceho do haly a zároveň zväčšuje rozsah vnímaného pohľadu do záhrady.
Pokračovanie čistej steny na fasáde domu je navrhnuté s úmyslom podporiť vizuálnu horizontálnosť a dostať viac súkromia od ulice pre nekrytú terasu v blízkosti izby.



